0

Marcelcave (80800)
T3 AVEC PARKING - MARCELCAVE

Prix
du bien
620 € CC*
réf : 337G/1

01
Général

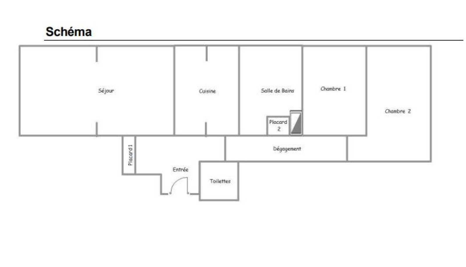
Ref 337G/1 : Appartement de type 3 situé rue de la Gare à MARCELCAVE (80800) - au rez-de-chaussée comprenant entrée avec placard, séjour de 28m², cuisine séparée (meuble évier + meuble bas de rangement), deux chambres, salle de bains, wc individuel - Place de parking aérienne - Chauffage individuel électrique - Superficie 93m² - LOYER 530€ + provision 90€ (communs, espaces verts et Tom) - LIBRE- Ref 337G/1

02
Plus d'infos

  • Code postal
    80800
  • Surface habitable (m²)
    93 m²
  • Surface loi Boutin (m²)
    93 m²
  • Nombre de chambre(s)
    2
  • Nombre de pièces
    3
  • Meublé
    NON

03
Financier

  • Loyer CC* / mois
    620 €
  • Honoraires TTC charge locataire
    750 €
  • Dont état des lieux
    Non renseigné
  • Dépôt de garantie TTC
    530 €
  • Charges locatives (provision donnant lieu à régularisation annuelle)
    90 €

04
Plus de détails

  • Nb de salle de bains
    1
  • Cuisine
    Séparée
  • Mode de chauffage
    Electrique
  • Type de chauffage
    Radiateur
  • Format de chauffage
    Individuel
  • Nombre de parking
    1
  • Année de construction
    2005

05
Copropriété

  • Copropriété
    NON

06
Bilan énergétique

DPE GES
Nos outils

Ce bien
m'intéresse

* CC : Charges comprises